Москва, Малый выставочный зал,
Нижняя Сыромятническая 10, с7
11/12 сентября’24 с 11:00 до 20:00
ИНТЕРЬЕРНЫХ ПРЕДМЕТОВ
АРХИТЕКТУРНЫХ РЕШЕНИЙ
11, 12 СЕНТЯБРЯ 2024 в ARTPLAY 11, 12 СЕНТЯБРЯ 2024 в ARTPLAY 11, 12 СЕНТЯБРЯ 2024 в ARTPLAY. 11, 12 СЕНТЯБРЯ 2024 в ARTPLAY. 11, 12 СЕНТЯБРЯ 2024 в ARTPLAY. 11, 12 СЕНТЯБРЯ 2024 в ARTPLAY. 11, 12 СЕНТЯБРЯ 2024 в ARTPLAY. 11, 12 СЕНТЯБРЯ 2024 в ARTPLAY
ДизайнВыставка &
DesignParty
"Загородная жизнь"
для архитекторов/дизайнеров,
производителей/поставщиков,
новоселов/покупателей
11, 12, 13 апреля 2024
с 12.00 до 20.00
Генеральный партнер
Новоселам - кто недавно получил ключи
и сейчас озабочен ремонтом

Покупателям недвижимости - из тех, кто еще не определился с покупкой

Профессиональному сообществу (дизайнеры, архитекторы, строители)

Или тем, кто решил просто обновить свой интерьер
3 дня 11,12,13 апреля с 12.00 до 20.00
4000 гостей
65+ стендов с новинками от производителей
5000+ товаров для интерьера и ремонта
24+ часа деловой программы
15+ спикеров
6+ круглых столов 40+ участников
250+ VIP гостей
Кому будет интересна выставка:
В эти 3 дня вы сможете:
Посетить
  • Два этажа мебельных и интерьерных стендов
  • фотозону под открытым небом
  • центральный арт-объект и индивидуальные экспозиции от партнеров выставки
с ассортиментом новых товаров для квартиры и дома от лучших производителей: крупных компании и локальные бренды с уникальными подходом
Познакомиться
Приобрести
товары со скидками, на любой бюджет от производителей мебели и товаров для дома, поставщиков отделочных материалов
Получить
бесплатную консультацию по дизайн-проекту и профессиональные советы от звезд в мире дизайна
  • как грамотно спланировать и качественно сделать ремонт
  • о новинках и трендах современных дизайнов
Узнать
Оценить
лучшие комплексные решения всех задач по ремонту квартир и частных домов: от отделочных материалов до мебели в интерьерах, в готовых вариантах расстановки реального объекта («Авторские комнаты»)
и пообщаться с воплотителями этих идей
Вдохновиться
идеями для ремонта
Найти
все что нужно для обновления интерьера, под одной крышей
Подобрать
строителя, архитектора или дизайнера для своего нового проекта
Список участников
производители и поставщики
Участники
уличной фотозоны
Инфопартнеры
Хотите узнать о лучших решениях в сфере интерьера и дизайна, от руководителей ведущих дизайн-студий и архитектурных бюро? Прокачать личный бренд?
Или решить наболевший вопрос?

Присоединяйтесь к ведущим профессионалам отрасли на лекциях, деловых дискуссиях и мастер-классах.
Тайминг
Четверг, Апрель 11.04 ’24
Лекторий. Тема дня:

Ведущие дня:

12.00 Кристина Ковалькова
12:40 Выступление от компании
12.50 Денисова Алена
13:45
14.45
16:15
17:00 Круглый стол
17.15
18.00
18:15
19.15
Четверг, Апрель 11.04 ’24
Мастер-классы. Уличная зона и Антресоль

19.30
Пятница, Апрель 12.04 ’24
Лекторий. Тема дня:
Ведущие дня:
12.00
12:45
13:00
13:45
14:00
14.45
16:15
17:00
17.15
18.00
18:15 Виктория Черепанова+Евгения Шилова
19.00
Пятница, Апрель 12.04 ’24
Мастер-классы. Уличная зона и Антресоль

16:00 - 18:00

Суббота, Апрель 13.04 ’24
Лекторий. Тема дня :
Ведущие дня:
Суббота, Апрель 13.04 ’24
Мастер-классы. Уличная зона и Антресоль

18.30 - 20.00
Спецпроект #

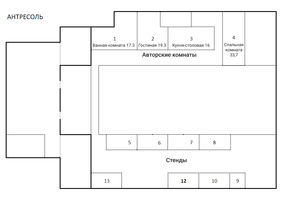
АВТОРСКАЯ КОМНАТА:
  • Расположение: Антресоль
  • Концепция: "Загородная жизнь»
концепция авторских комнат и #
кухня-столовая - ; спальня - , гостиная -,ванная комната
11 апреля 2024
Ведущие
Ведущие специалисты архитектурно-дизайнерской среды

Спикеры
круглого стола
Участники
12 апреля 2024
Ведущие
Ведущие специалисты архитектурно-дизайнерской среды

Спикеры
круглого стола
Участники
13 апреля 2024
Ведущие
Ведущие специалисты архитектурно-дизайнерской среды

Спикеры
круглого стола
Участники
VIP гости
  • Размещение логотипа, ссылки на сайт и социальные сети и информации о компании: на сайте дизайн-выставка.рф , в социальных сетях, во всех промо материалах рекламной кампании выставки;
  • Распространение раздаточных материалов на выставке;
Рекламные возможности
Стенд 2х2 м2
105 000 р
Стенд 2х4 м2
155 000 р
Стенд 2х6 м2
205 000 р
Стенд 2х8 м2
255 000 р
Цены указаны для арендаторов ARTPLAY.
Для компаний, не являющихся арендаторами - наценка 10%.
Свяжитесь с нами
Стенд 2х2 м2
75 000 р
Стенд 2х4 м2
125 000 р
АНТРЕСОЛЬ
1 ЭТАЖ
  • Предоставление базы участников выставки: архитекторов, дизайнеров и прямых покупателей;
  • Возможность участия в розыгрыше призов для архитекторов и дизайнеров;
  • Фотоотчёт о мероприятии на сайте дизайн-выставка.рф , на сайтах и в соцсетях информационных партнёров;
Стенд 2х6 м2
150 000 р
План размещения стендов
Дополнительные опции: 15 минутное выступление представителя компании - 55 000 р
"ARTPLAYЦентр Дизайна"
Москва, Нижняя Сыромятническая, 10, строение 7,
Малый выставочный зал
Контакты
СТРОЕНИЕ 7, ЭТАЖ 1